Gestaltung / Bau der Außenanlagen am Schulgebäude Fröbelstraße 17, einschließlich barrierefreier Zugang

  • Durchführungszeitraum: 14.06.2017 bis 30.09.2020
  • Gesamtkosten:                 916.832,34 €
  • Förderung:                       862.706,50 € (80 % davon aus Mitteln des Europäischen Fonds für regionale Entwicklung (EFRE) und 20 % aus städtischen Eigenanteilen)
  • Eigenanteil Schulträger:     54.125,84 €

Kurzbeschreibung:

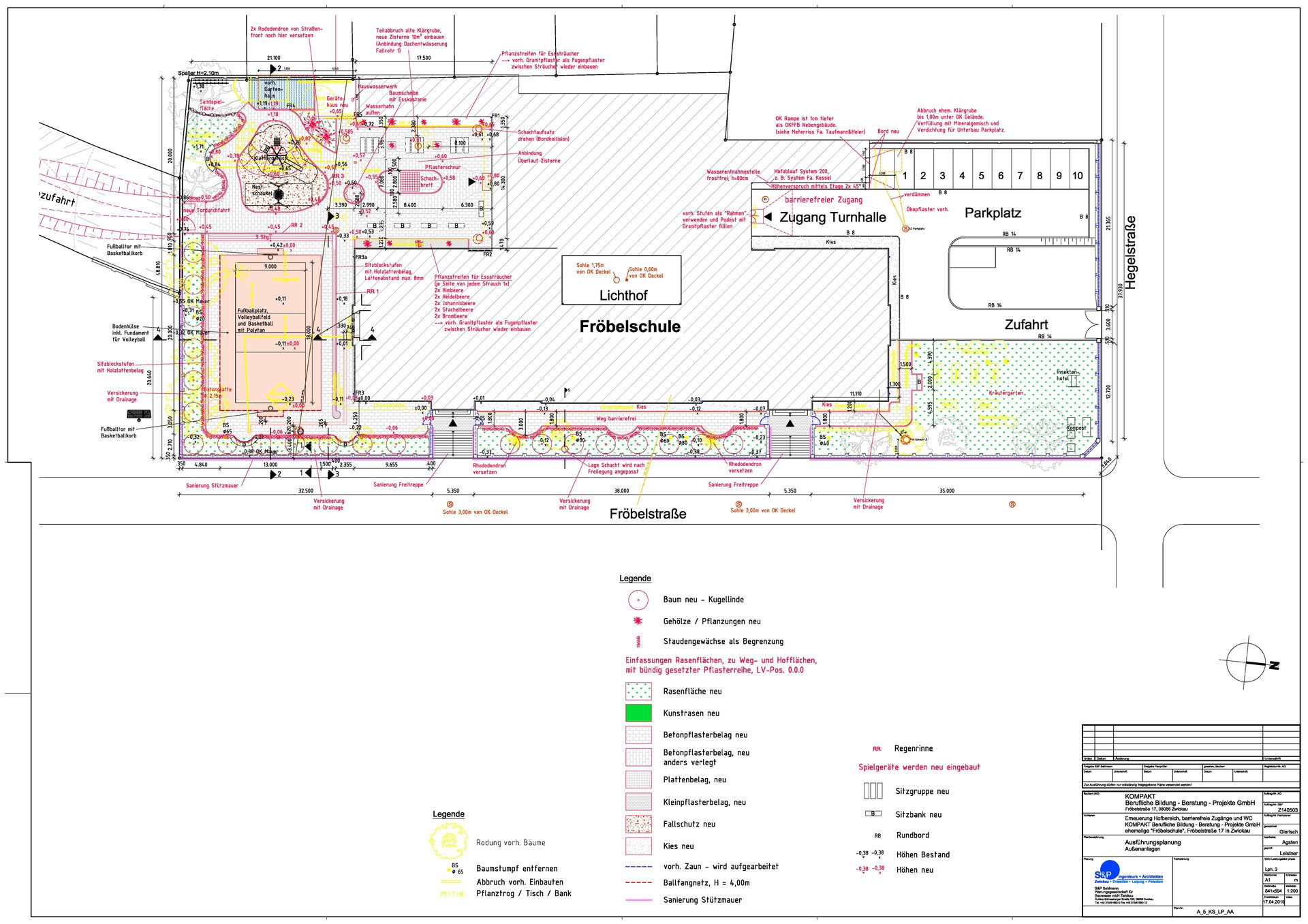
Ziel der Maßnahme ist die Rekonstruierung und die Herstellung eines normgerechten Außengeländes als Spielplatz und Freizeitgelände zur Nutzung durch die Grund- und Oberschule, Hort sowie die Bewohner aller Altersklassen aus dem Stadtquartier. Die Maßnahme schafft die Voraussetzungen zur Nutzung für weitere öffentliche (ESF-) Projekte.

Bei der Maßnahme werden die bestehenden Aufbauten im Außengelände abgerissen und entsorgt und zudem werden die Untergründe neu aufgebaut. Auf diesem neu konstruierten Untergrund wird für die zielentsprechende Nutzung eine multifunktionale Freifläche entwickelt. Hinzu kommt eine barrierefreie Erschließung der Gesamtanlage.

Geplante Maßnahmen:

  • Einbau neuer Beläge auf den Hofflächen
  • Komplexere Sanierung des Entwässerungssystems
  • Einbau neuer Sitzgruppen und Spielgeräte sowie Sandspielfläche
  • Einbau eines Minispielfeldes für Fuß- und Basketball
  • Erneuerung und anlegen von Grünflächen und Baumpflanzung
  • Sanierung der Stützmauer
  • Aufarbeitung und Ergänzung des schmiedeeisernen Zaunes
  • Abbruch und Neuaufbau der Treppenanlagen inkl. Entwässerung

Barrierefreiheit

Die vorhandenen Außenanlagen sind derzeit für Menschen mit körperlichen Einschränkungen nicht nutzbar, da sie nicht barrierefrei erreicht werden können oder entsprechende Ausstattungen nicht vorhanden sind. Die öffentliche Zugänglichkeit und Nutzung der Außenanlage im Rahmen der geplanten ESF-Projekte setzt eine barrierefreie Erschließung sowie Grundausstattung (barrierefreies WC) voraus.

Aus diesem Grund ist die Schaffung barrierefreier Zugänge der Außenanlage über ein neues Wegesystem sowie der Einbau eines barrierefreien WC's im Nebengebäude inkl. eines barrierefreien Zugangs geplant.

Hierbei handelt es sich um eine Fördermaßnahme Dritter. Der Maßnahmeträger ist die KOMPAKT Berufliche Bildung - Beratung - Projekte GmbH.

Planung der Außenanlage
  • Büro Stadtentwicklung

    Postanschrift

    PF 20 09 33
    08009 Zwickau

    Besucheradresse

    Hauptmarkt 1
    08056 Zwickau
    Virginia Gründel
    SB Fördermittel/
    EFRE/ESF

    Kontakt aufnehmen

    Telefonnummer: +49 375 831903
    Fax: +49 375 831818