Südliche Zugänge zum Platz der Völkerfreundschaft werden neu angelegt

veröffentlicht am: 06.03.2018

Das Garten- und Friedhofsamt informiert:

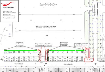
Am Platz der Völkerfreundschaft werden an der südlichen Kante, entlang der Osterweihstraße, in den kommenden Wochen zwei Eingangsbereiche und einige Grünstreifen neu angelegt.

In Höhe der Hauptzufahrt, gegenüber der Einmündung Poetenweg, werden auf beiden Seiten die unmittelbar angrenzenden Bereiche mit neuen Belagsflächen, Abfallbehältern und Bänken wesentlich einladender gestaltet.

Im Eckbereich August-Bebel-Straße/Osterweihstraße ist vorgesehen, den Zugang unter den Roteichen dem gegenüberliegenden Eingang zur Parkanlage Rosenwiese anzupassen.

Die beauftragten Landschaftsbauarbeiten beginnen zunächst mit der Entfernung überalterter Gehölze in den schmalen Baumbeeten und Pflanzstreifen am Rand der Anliegerstellplätze. Danach erfolgt in diesen Beeten ein Bodenaustausch. Entsprechend dem geplanten Arbeitsablauf muss dafür jeweils ein Teil der Anliegerstellplätze für einen kurzen Zeitraum gesperrt werden. Für die weitere Baustelleneinrichtung wird auch ein kleiner Bereich auf der großen Platzfläche genutzt.

Bei winterlichen Wetterperioden ist eine zeitweilige Unterbrechung der beauftragten Leistungen möglich. Es ist vorgesehen, die Bauarbeiten spätestens Mitte April abzuschließen.

Es wird um Beachtung der wechselnden Absperrungen während der Bautätigkeit und ggf. die Nutzung der anderen Platzzugänge gebeten.

Die Gesamtkosten der Baumaßnahme belaufen sich auf ca. 120 T Euro. Finanziert wird die Baumaßnahme z. T. aus Fördermitteln „Stadtumbau Ost – Aufwertung Fördergebiet Nordvorstadt“.

Lageplan der Neugestaltung (pdf)