Schwanenteichpark, Teilbereich III, Ziegelwiese

  • Durchführungszeitraum: 12.12.2018 bis 30.06.2022
  • Gesamtkosten:                 857.062,00 €
  • Förderung:                        857.062,00 € (80 % davon aus Mitteln des Europäischen Fonds für regionale Entwicklung (EFRE) und 20 % aus städtischen Eigenanteilen)

Kurzbeschreibung:

Die Erhaltung, Wiederherstellung und Pflege des Schwanenteichparks als Gesamtkunstwerk mit seiner gartenkünstlerischen Aussage von Ende des 19. Jahrhunderts ist das Ziel aller gärtnerischen und landschaftsbaulichen Tätigkeiten. Dazu gehören im Kern der Aufbau von Gehölzbeständen sowie die Erhaltung und Wiederherstellung der ursprünglichen Artenvielfalt. Außerdem bilden in einer Parkanlage die Blick- und Wegebeziehungen, die Erhaltung offener, freier Parkräume (Wiesen und Wasserflächen) im Wechsel mit den geschlossenen Gehölzbeständen sowie Blickpunkte innerhalb der Anlage (Einzelgehölze, Parkbauwerke) und im Umgebungsbereich die wesentlichen gestalterischen Aufgaben.

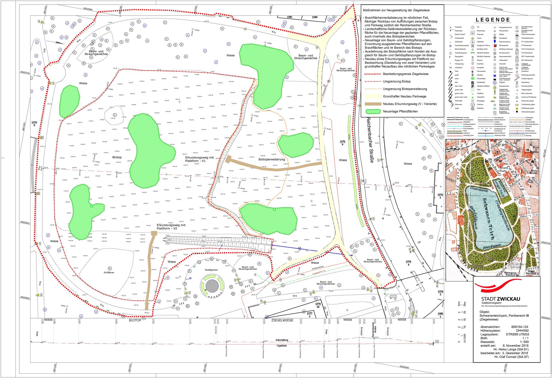
Der brachliegende Charakter des Parkbereiches an der Ziegelwiese wird diesen grundlegenden Aspekten für eine Parkraumgestaltung nicht gerecht. Auf Basis der ursprünglichen Planungen für das gesamte Schwanenteichparkgelände sollen mit diesem Vorhaben die hier brachliegenden Flächen mit umfangreichen Gehölzpflanzungen neu gestaltet und aufgewertet werden.

Eine wesentliche Grundlage für die Etablierung der neuen Laubgehölzflächen wird durch umfangreiche Erdbewegungsarbeiten und den Rückbau der Auffüllungen im nördlichen Bereich der Ziegelwiese, zugunsten einer Erweiterung der Biotopflächen geschaffen. Diese Erweiterung um mindestens 1500 m² ermöglicht den Ersatz für neue Biotopflächen, die durch die Herstellung der Pflanzflächen innerhalb des Biotops verloren gehen werden. Die Lage der neuen Pflanzflächen basiert auf dem maßgeblichen Plan zur Parkgestaltung aus dem Jahr 1866. Demnach sind zwei große, geschlossene Gehölzstrukturen mit einer Gesamtfläche von ca. 1500 m² innerhalb des Biotops anzulegen.

Alle weiteren Pflanzungen mit einer Gesamtfläche von ca. 2000 m² befinden sich außerhalb des Feuchtbiotops, überwiegend im Bereich der bestehenden Auffüllungen. Beim Rückbau der Auffüllflächen können geeignete Untergründe für die neuen Gehölzflächen, für den Neuaufbau der Vegetationstragschichten genutzt werden. Die Rückbauflächen werden im Zuge der Erdarbeiten landschaftlich modelliert.

Die Etablierung der ausgedehnten Gehölzflächen wird zu einer Erhöhung der CO2-Bindung führen.

Die Neugestaltung soll zu einer besseren Erlebbarkeit des Biotops führen. Mit dem Bau eines Weges bis zu einer Beobachtungsplattform wird eine Möglichkeit zur Naturbeobachtung im Parkgelände, unweit vom Zentrum der Stadt, geschaffen. Neben der guten Sicht in die geschützte Fläche, bestehen hier Möglichkeiten für Erläuterungen zur Maßnahme und weitere Umweltbildung für interessierte Parkbesucher.

Mit all diesen einzelnen Abschnitten soll durch die Brachflächenrevitalisierung und anschließende Neugestaltung der Ziegelwiese die Fläche renaturiert und das Biotop erlebbar gemacht werden.

Ziele des Projekts:

  • Brachflächenrevitalisierung im nördlichen Teil, flächiger Rückbau von Auffüllungen zwischen Biotop und Parkweg südlich der Reichenbacher Straße

  • landschaftliche Geländemodellierung der Rückbaufläche für die Neuanlage der geplanten Pflanzflächen, auch innerhalb des Biotopbereiches

  • Verbesserung der CO2-Bilanz durch die Neuanlage von Baum- und Gehölzpflanzungen, Einordnung ausgedehnter Pflanzflächen auf den Brachflächen und im Bereich des Biotops

  • Ausdehnung der Biotopfläche nach Norden als Ausgleich für Baum- und Gehölzpflanzungen innerhalb des kartierten Biotop

  • Neubau eines Erkundungsweges mit Beobachtungsplattform und grundhafter Neuaufbau des nördlichen Parkweges

Blick von der Auffüllungskante über das Biotop nach Süden mit dem einzigen verbliebenen Baum auf der zentralen Wiesenfläche
Blick von der Auffüllungskante über das Biotop nach Süden mit dem einzigen verbliebenen Baum auf der zentralen Wiesenfläche
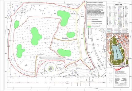
Übersichtsplan
Übersichtsplan
  • Büro Stadtentwicklung

    Postanschrift

    PF 20 09 33
    08009 Zwickau

    Besucheradresse

    Hauptmarkt 1
    08056 Zwickau
    Virginia Gründel
    SB Fördermittel/
    EFRE/ESF

    Kontakt aufnehmen

    Telefonnummer: +49 375 831903
    Fax: +49 375 831818
Logo EFRE EU