Vermietung Vereinshaus Schlunzig

Anschrift

Am Dorfteich 8, 08058 Zwickau (Stadtteil Schlunzig)

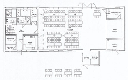
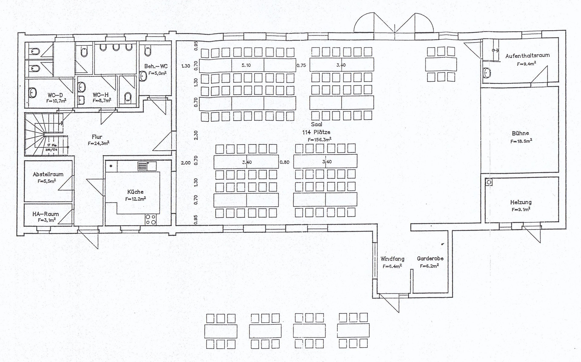
Räumlichkeiten

  • 156 m² Vereinssaal (bis ca. 140 Plätze)
  • Bühne (19 m²)
  • Garderobenbereich, Küche (12 m²)
  • Behinderten-WC
  • großer umzäunter Außenbereich

Preis

  • 260,00 EUR pro Veranstaltungstag
  • zzgl. 300,00 EUR Kaution
  • Endreinigung durch Mieter
  • Liegenschafts- und Hochbauamt

    Postanschrift

    PF 20 09 33
    08009 Zwickau

    Besucheradresse

    Hauptmarkt 26
    08056 Zwickau

    Öffnungszeiten

    Di
    9-12 Uhr / 13-18 Uhr
    Do
    9-12 Uhr / 13-15 Uhr
    Christoph Kaufmann
    Amtsleiter

    Kontakt aufnehmen

    Telefonnummer: +49 375 836500
    Fax: +49 375 836565